Arriendo Propiedad Mixta en Santiago: 450m² de Oficinas y Bodega Logística

UF 80

$3.205.360

Santiago Matta

  • 4 estacionamientos
  • 485 m² terreno
  • 485 m² construidos

 

Gran Propiedad Mixta: 450m² de Oficinas Premium y Bodega Logística – Madrid 1409, Santiago. 

 

Oportunidad estratégica para empresas, centros de distribución o centros operativos en el corazón de Santiago. 

 

Inmueble cuenta con recepción definitiva de la municipalidad de santiago para comercio y oficinas

 

Ubicada en Calle Madrid 1409, esta propiedad destaca por su conectividad inmejorable y versatilidad de espacios.

 

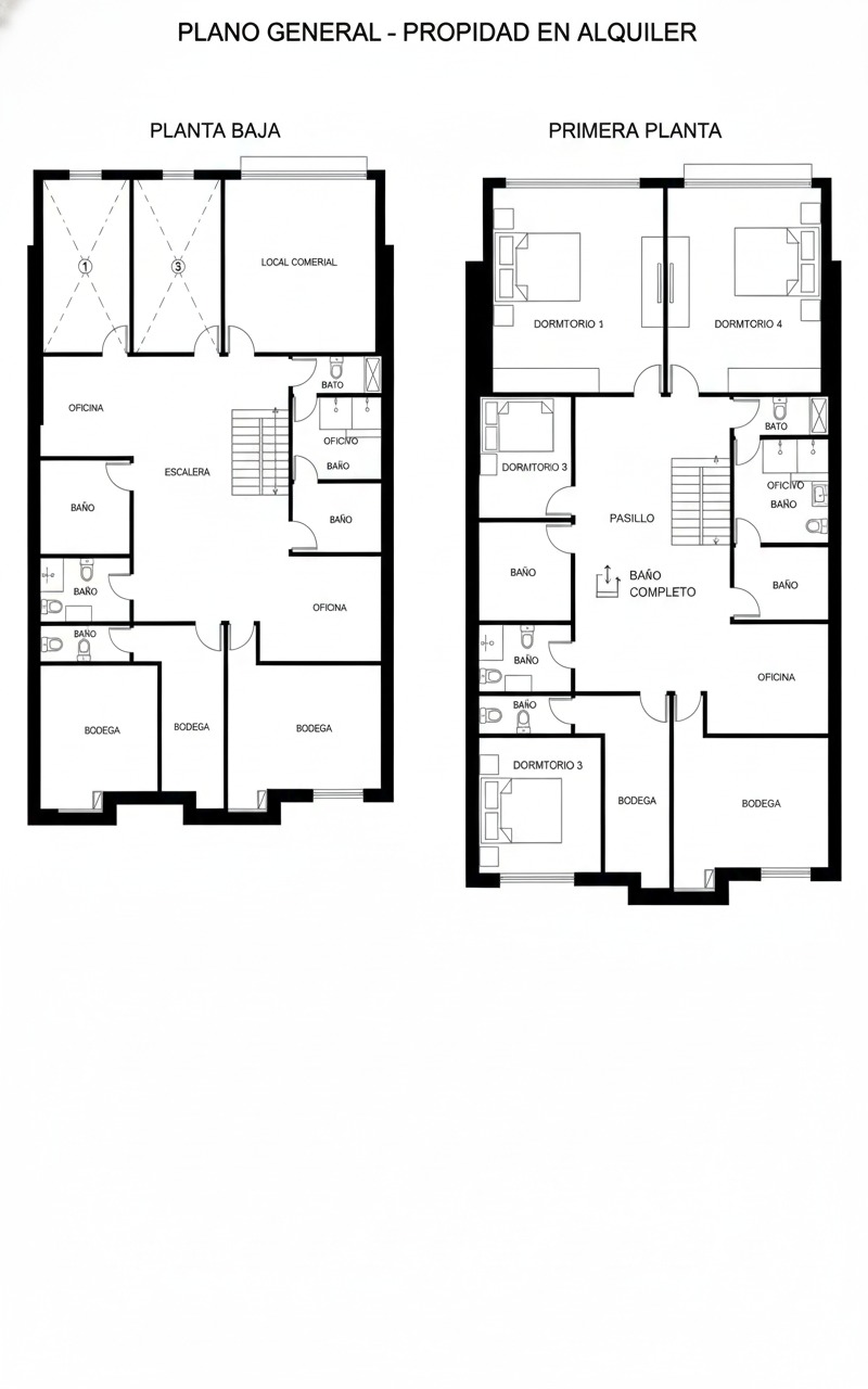
Distribución por Niveles:

 

Piso 1 (Operativo/Logístico):

 

Espacio de bodega con acceso para camionetas de carga y descarga.

 

Altura de 2.80 m en gran parte de la planta.

 

Área central de doble altura: Cuadrante de 6x5 metros con 6 metros de altura libre, ideal para almacenamiento vertical o maquinaria pesada.

 

3 baños completos (WC y ducha) para personal de operaciones.

 

Piso 2 (Administrativo/Oficinas):

 

6 oficinas de grandes dimensiones.

 

7 áreas semi-cerradas adicionales para estaciones de trabajo o privados.

 

Terminaciones de alto estándar: Piso de porcelanato, cielo americano y sólida construcción en obra gruesa.

 

Kitchenette equipada y 2 baños adicionales.

 

Ubicación y Conectividad: Ubicación privilegiada en el eje Carmen, con acceso inmediato a:

 

Av. Matta y Av. Vicuña Mackenna.

 

Rápida conexión a Autopista Central para logística regional.

 

Ficha Técnica:

 

Superficie Terreno: 268 m².

 

Superficie Construida: 450 m².

 

Valor arriendo 80UF

 

Interesados contactar a SLE GESTIÓN. Abstenerse intermediarios

 

Mes de garantía + mes de arriendo + 40UF comisión.

 

Interesados contactar por WhatsApp o llamar al +56 982594959

 


Más características

  • Agua potable
  • Gas Natural
  • Luz eléctrica
  • Sistema de Ventilación
  • Soporte de Piso
  • Sistema de Ventilación
  • Soporte de Piso
  • Agua potable
  • Gas Natural
  • Luz eléctrica

Miguel Angel Bravo-Iratchet Arriagada

Contacta al corredor


15 visualizaciones

Te puede interesar